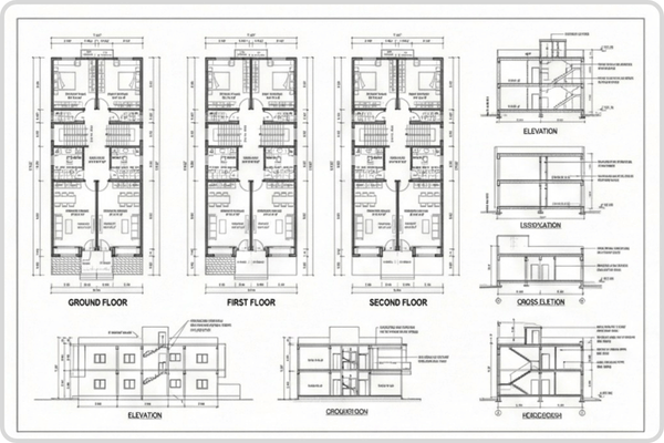
Project 02

Individual Modern Home

Location: Gobichettipalayam
Project Type: Independent Residential House
Status: Completed

Project Overview

A custom-built modern residence designed with attention to comfort, aesthetics, and durability, completed as per the client’s expectations.

Scope of Work

Key Features

Start Your Project With Us: From planning to completion, we ensure expert execution and dependable construction at every stage.

Contact Marutham Builders