Project 04
Educational Institution
Location: Namakkal
Project Type: School, Education Centre
Status: Completed
Project Overview
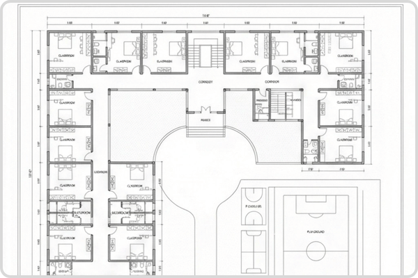
The project involved the construction of an education centre designed to provide a safe and comfortable learning environment.
Scope of Work
- Classroom block construction
- Staff rooms and administrative offices
- Sanitary facilities for students
- Electrical and ventilation systems
- Playground and open space development
Key Features
- Safe and student-friendly infrastructure
- Well-lit and ventilated classrooms
- Durable flooring and fittings
- Compliance with basic safety norms
Start Your Project With Us: From planning to completion, we ensure expert execution and dependable construction at every stage.
Contact Marutham Builders
- +91 866 770 7752
- sales@maruthambuilders.com
- 858, Sadayampalayam Road, Lakshmi Garden Entrance, Near Muthusamy Colony, Erode - 638002.





